?!DOCTYPE html PUBLIC "-//W3C//DTD XHTML 1.0 Transitional//EN" "http://www.w3.org/TR/xhtml1/DTD/xhtml1-transitional.dtd">
安装准备
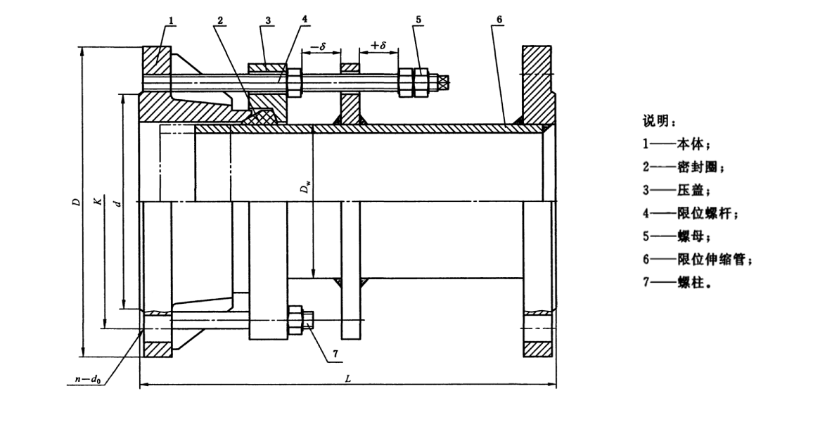
1、双法兰限位伸羃接头安装前,应按施工图检查~接头的型式Q规|传力螺杆装置{,应确认符合设计要求?br/>2、按安装说明书和施工图核对双法兰限位伸羃接头的~量或调节量Q双法兰限位~接头在安装前处于最佳状态?br/>3、法兰连接管件的法兰型式要与补偿接头的法C致?br/>敯Q安?/span>
1、定?br/>1.1、所有双法兰限位伸羃接头在安装前应对插入的管子先按要求在端做好插入长度标记Q确定管路定位时q接件的伸羃?br/>1.2、安装管路中讄(g)查室的情况下Q双法兰限位伸羃接头的安装位|应便于(g)查及(qing)l修?br/>1.3、用双法兰限位伸羃接头当设有支架时应做到接头一端靠q固定支Ӟ另一端靠q导向支Ӟ接头与支架的距离均应不大于管子外径的4倍?br/>1.4、用双法兰限位伸羃接头的管道系l应正确选用固定支架和导向支Ӟ支架的数量应与系l相适应Q支架安攑֜双法兰限位~接头附q?br/>2、焊?br/>2.1、焊接前(g)查双法兰限位伸羃接头和被焊接道口的^整度Q圆度及(qing)坡口Q应W合相关标准要求?br/>2.2、施焊时双法兰限位~接头和被焊道口应定位固定,不应产生位移?br/>2.3双法兰限位~接头的施焊按双法兰限位伸羃接头的焊接工定要求进行操作?br/>3?(g)查调?br/>3.1、双法兰限位伸羃接头安装后应q行(g)查,所有压盖均应统一拧紧Q保证密圈和填料处于最佳状态?br/>3.2、根据需要,补偿接头的传力杆调节至有效位置。补偿接头周围应有够的I间Q以保证补偿接头在设计范围内能自p动?br/>3.3、管道吊装位|不应设在双法兰限位伸羃接头上?br/>3.4、确认所有导向支Ӟ固定支架未正安装之前,不应q行内部压力试验?/p>
适用于输送v_(d)淡水Q冷热水Q饮用水Q生zL_(d)原a(b)Q燃油,滑a(b)Q成品a(b)Q空气,燃气Q温度不高于205?br/>双法兰限位~接头的选用
双法兰限位~接头能吸收热膨L(fng)形成的u向位U,能承受一定的压力Q内压)(j)推力Q不能吸收管路的角偏转。Bc补偿接头不宜安装在有横向和角偏转位Uȝ\pȝ?br/>双法兰限位~接头设有限位装|?br/>双法兰限位~接头可明设或埋地敷设?br/>双法兰限位~接头可用于埋地\地基地质条g好、环境温度变化较大的\pȝ。埋地或与阀门等讑֤q接时应有检查室?br/>双法兰限位~接头适用于安装在倾斜或竖直的\中?br/>双法兰限位~接头的安装可分为明设、埋地敷讑֒沟敯{方?
双法兰限位~接头宜用于船舶\pȝӞ应符合有兌求和规定?br/>双法兰限位~接头宜用于船舶IIU纵系和IIIU管p,但不适用于下列场?br/>aQ穿q压载舱和燃料舱的舱底水系
bQ穿q货舱和燃料qh和压载管pR包括空气和溢流系
cQ穿q机器处所、货舱和压蝲q燃料和石油管p,包括I气和溢管p?br/>dQ压力水雄l中的非L(q管pȝQ?/p>
公称通径 QN | 子外径 Dw | 法兰q接寸 | 密封?/span> d | 总长 L | 伸节?span style="color: rgb(255, 255, 255); font-family: 微Y雅黑,Microsoft YaHei; font-size: 20px;">?/span> | 质量 kg | ||||
法兰 外径 D | 螺栓孔中?j)圆直?/span> K | 螺栓 孔径 d0 | 螺栓 | |||||||
nQ个Q?/span> | Th. | |||||||||
65 | 76 | 185 | 145 | 18 | 8 | M16 | 122 | 300 | 25.0 | 14.8 |
80 | 89 | 200 | 160 | 138 | 16.7 | |||||
100 | 108 | 220 | 180 | 158 | 24.0 | |||||
125 | 133 | 250 | 210 | 188 | 30.7 | |||||
150 | 159 | 285 | 240 | 22 | M20 | 212 | 37.8 | |||
200 | 219 | 340 | 295 | 268 | 47.1 | |||||
250 | 273 | 395 | 350 | 12 | 320 | 65.3 | ||||
300 | 325 | 445 | 400 | 370 | 370 | 32.5 | 77.5 | |||
350 | 377 | 505 | 460 | 16 | 430 | 95.6 | ||||
400 | 426 | 565 | 515 | 26 | M24 | 482 | 108.9 | |||
450 | 480 | 615 | 565 | 20 | 532 | 124.8 | ||||
500 | 530 | 670 | 620 | 585 | 153.7 | |||||
600 | 630 | 780 | 725 | 30 | M27 | 685 | 192.7 | |||
700 | 720 | 895 | 840 | 24 | 800 | 234.6 | ||||
800 | 820 | 1015 | 950 | 33 | M30 | 905 | 600 | 65.0 | 423.3 | |
900 | 920 | 1115 | 1050 | 28 | 1005 | 524.5 | ||||
1000 | 1020 | 1230 | 1160 | 36 | M33 | 1110 | 597.9 | |||
1200 | 1220 | 1455 | 1380 | 39 | 32 | M36 | 1330 | 833.1 | ||
1400 | 1420 | 1675 | 1590 | 42 | 36 | M39 | 1535 | 640 | 1089.3 | |
1600 | 1620 | 1915 | 1820 | 48 | 40 | M45 | 1760 | 1479.6 | ||
1800 | 1820 | 2115 | 2020 | 44 | 1960 | 1745.8 | ||||
2000 | 2020 | 2325 | 2230 | 48 | 2170 | 2079.2 | ||||
2200 | 2220 | 2550 | 2440 | 56 | 52 | M52 | 2370 | 2590.2 | ||
2400 | 2420 | 2760 | 2650 | 56 | 2570 | 2896.2 | ||||
2600 | 2620 | 2960 | 2850 | 60 | 2780 | 710 | 70.0 | 3058.3 | ||
2800 | 2820 | 3180 | 3070 | 64 | 3000 | 3342.9 | ||||
3000 | 3020 | 3405 | 3290 | 62 | 68 | M56 | 3210 | 3655.1 |
如需最新数据请联系在线客服
沛_良众业有限公司 手机P(x)18638277136 Q?371-64018718 传真Q?nbsp;0371-64018718 邮箱Q?50165323@qq.com 地址Qm义市(jng)西村镇西?nbsp; |址Q?a href="http://tgbnf.cn" target="_self">http://tgbnf.cn